埃德蒙顿华人社区-Edmonton China

 找回密码
 注册
查看: 2670|回复: 10

自卖全新西南区两房CONDO,2015年12月入住,615尺,17万5千

[复制链接]
鲜花(137) 鸡蛋(0)
发表于 2015-9-4 13:19 | 显示全部楼层 |阅读模式
老杨团队,追求完美;客户至上,服务到位!
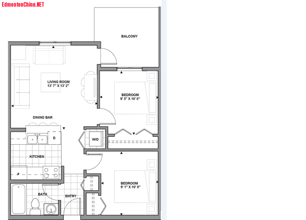
自卖全新西南区两房一厅位于二楼的CONDO(共四层),2015年12月入住,面积615尺,管理费130,送五件套家电,带一个地上加热停车位,售价17万5千加币,位置是RABBIT HILL ROAD & ANTHONY HENDAY DRIVE,详情请电780-680-1338
queue.png
鲜花(77) 鸡蛋(0)
发表于 2015-9-7 06:39 | 显示全部楼层
这么好的房子怎么说不要就不想要了呢?你是那里的销售代表还是自卖啊?看价也不贵?
鲜花(3) 鸡蛋(0)
发表于 2015-9-7 11:26 | 显示全部楼层
一个卧室没窗户啊?
" H6 V6 d- c: q  P8 G8 A( v# [# f
鲜花(137) 鸡蛋(0)
 楼主| 发表于 2015-9-7 21:28 | 显示全部楼层
老杨团队 追求完美
本帖最后由 kijiji 于 2015-9-7 21:32 编辑
: [+ n7 r# U" j4 }( j7 [- v  O1 T& M9 Q1 v8 m$ B) V3 q% N! Z
我有两套了,我是屋主,自卖,详情请来电咨询,这套房子还送一年免费Telus的电视网络使用,轻松可以租900到1100,以现在的贷款利率1.95%每月绝对是正收益的。
鲜花(150) 鸡蛋(3)
发表于 2015-9-8 08:22 来自手机 | 显示全部楼层
黑金 发表于 2015-9-7 12:26
# ^5 Y* ?! Y+ E2 Y4 J% J- R一个卧室没窗户啊?
) ?* y4 ]; U/ c  R" w) p
沒窗就不叫卧室叫den了吧
大型搬家
鲜花(137) 鸡蛋(0)
 楼主| 发表于 2015-9-8 10:03 | 显示全部楼层
适合小家庭和夫妻入住,或出租投资,新房有建筑保险包保修,CONDO FEE起码三到五年不会增加。
鲜花(4) 鸡蛋(0)
发表于 2015-9-11 01:00 | 显示全部楼层
老杨团队,追求完美;客户至上,服务到位!
窗户少了点
鲜花(137) 鸡蛋(0)
 楼主| 发表于 2015-9-11 11:18 | 显示全部楼层
昨天刚去看了下房子,外面基本都搞好了,剩下内部装修,十一月份应该可以交楼了,位置一流,大家经过的时候可以去看看,一共有三栋,就在ANTHONY HENDAY 和 RABBIT HILL ROAD 交界的东北角,地址也有了:5804 MULLENS PLACE NW。
鲜花(54) 鸡蛋(1)
发表于 2015-9-11 14:02 来自手机 | 显示全部楼层
老杨团队,追求完美;客户至上,服务到位!
那么多网友问只有一个窗户的问题楼主都避而不答,我能想象和楼主想要达成协议买房也不是一件容易的事情。如果是den就说是den,大家只是想了解一下详细的情况
大型搬家
鲜花(137) 鸡蛋(0)
 楼主| 发表于 2015-9-11 14:07 | 显示全部楼层
老杨团队,追求完美;客户至上,服务到位!
本帖最后由 kijiji 于 2015-9-11 14:18 编辑 ! K1 ]0 _; e0 h- i8 Y

. z) B# @4 v" I  h开发商的建筑图已经附在第一个帖子上了,上面就是说的BEDROOM,开发商卖房的时候是TWO BEDROOM CONDO,并且卖房合同也是这样写的,合同是法律文件吧。如果需要了解其他情况请来电咨询,卖家绝对是非常NICE的一个人 。这个CONDO是位于二楼,总共四层有电梯的,随屋赠送5件全新家电,开发商是本省最大的一个CONDO开发商,质量值得信赖。
鲜花(54) 鸡蛋(1)
发表于 2015-9-11 16:01 来自手机 | 显示全部楼层
kijiji 发表于 2015-9-11 15:07+ X3 k9 l6 b, E! T  d1 I
开发商的建筑图已经附在第一个帖子上了,上面就是说的BEDROOM,开发商卖房的时候是TWO BEDROOM CONDO,并且 ...
& I. v) e. c* i
这个回答很nice 赞一个!
您需要登录后才可以回帖 登录 | 注册

本版积分规则

联系我们|小黑屋|手机版|Archiver|埃德蒙顿中文网

GMT-7, 2026-2-3 18:12 , Processed in 0.165375 second(s), 22 queries , Gzip On, APC On.

Powered by Discuz! X3.4

Copyright © 2001-2021, Tencent Cloud.

快速回复 返回顶部 返回列表